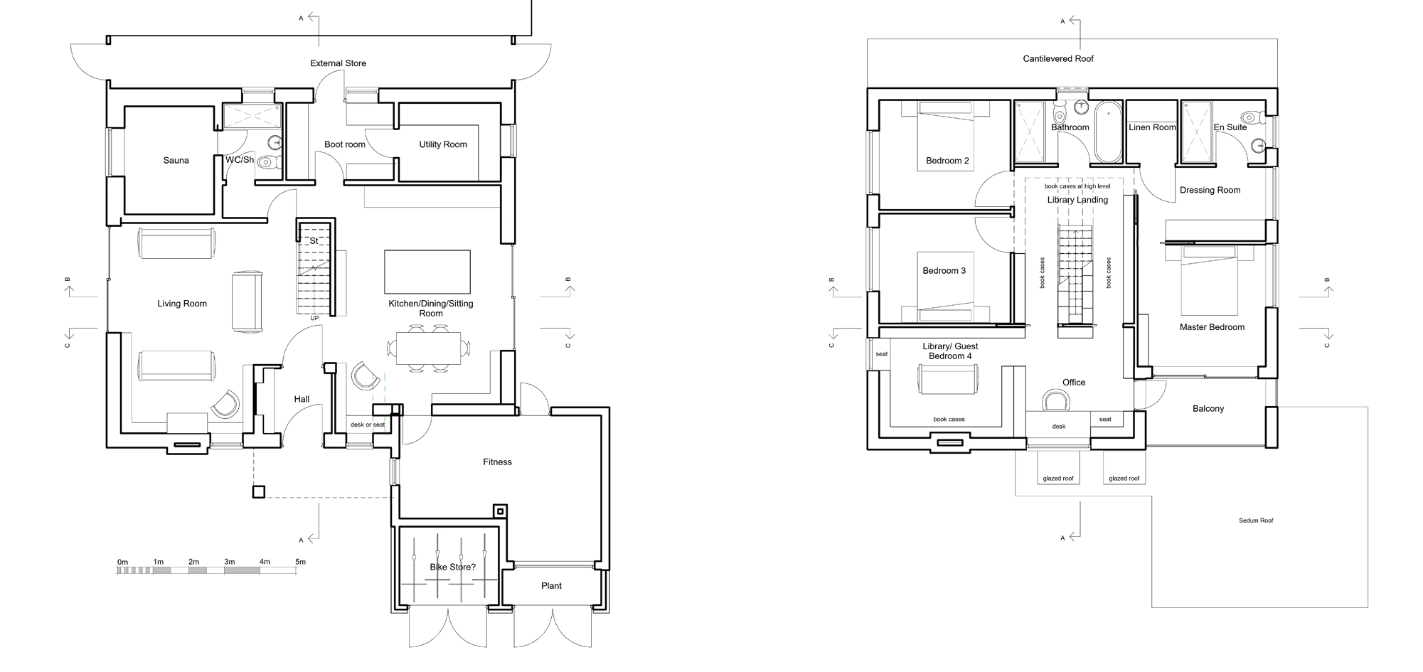
Book Collectors House
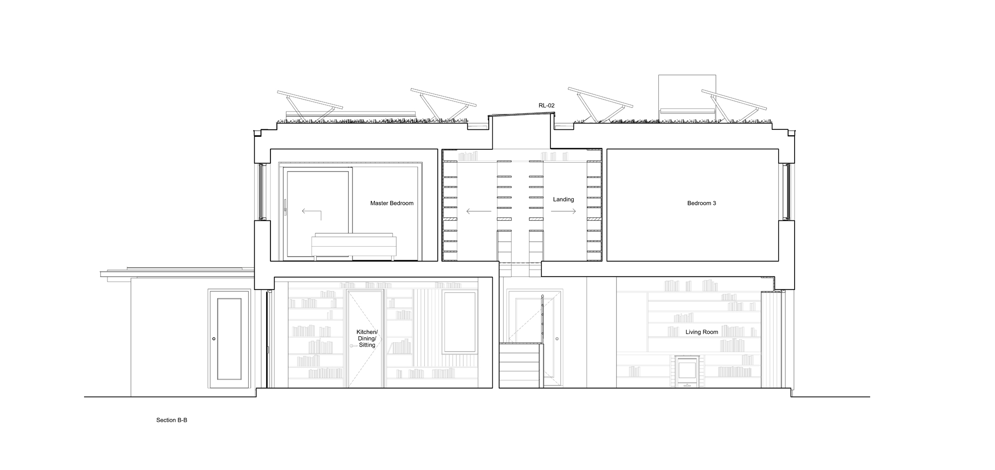
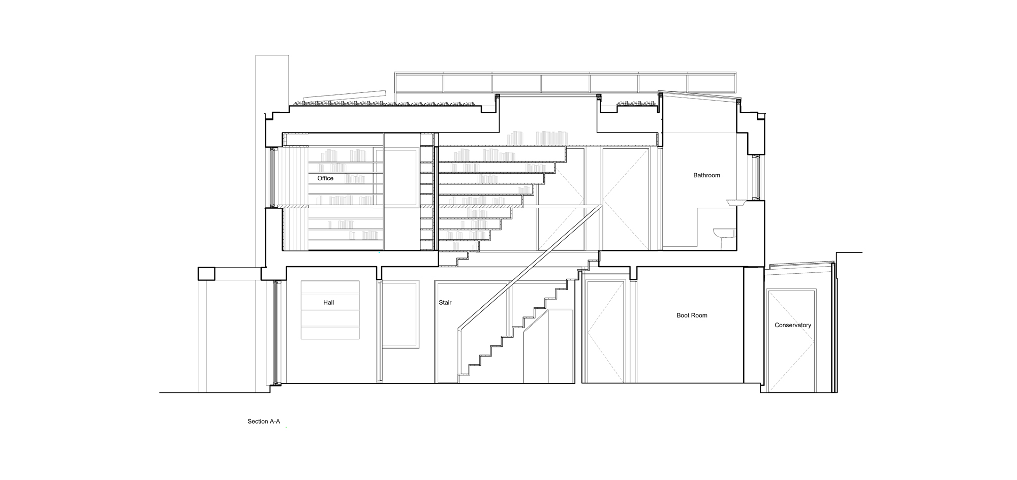
This project transforms an existing inefficient chalet style bungalow into a modern two story house. The roof is removed and replaced with a timber framed flat roof extension, whilst the ground floor is externally insulated to improve performance.
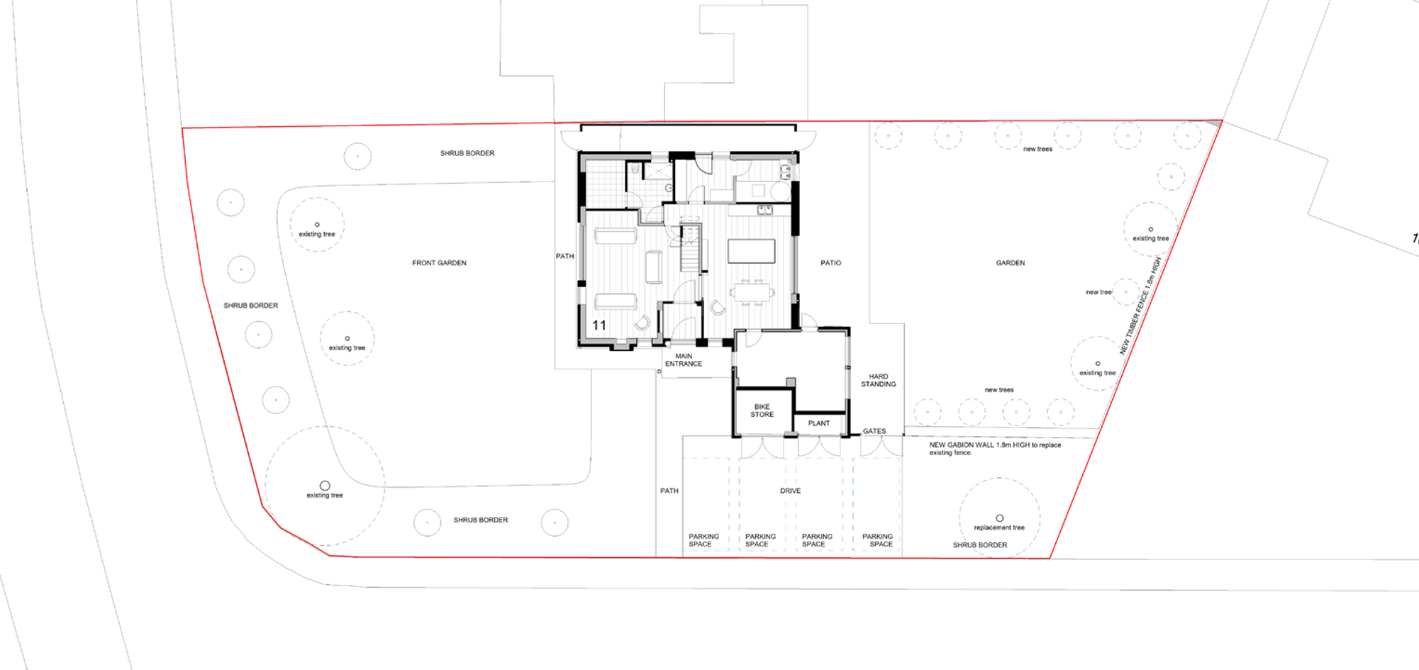
Inside the layout is reconfigured to take in the large gardens to the front and back and the walls are lined internally with bookshelves to store 10,000 books.
